
In Eckersmühlen bauen wir für Sie neun attraktive und moderne Reihenhäuser in massiver Kalksandstein Bauweise.
Errichtet als KfW Energieeffizienzhaus 55 mit Effizienzklasse A+.
Zu jedem Haus sind 2 Stellplätze zu erwerben. Diese sind im Kaufpreis nicht enthalten.
Gegen einen Mehrpreis kann der Stellplatz auch mit einem Carport oder einer Garage bestückt werden.
Eine Netter gebaute Immobilie kaufen Sie generell direkt bei uns als Bauherrn.
Mit garantiert schlüsselfertiger Übergabe, pünktlich zum vereinbarten Termin.
Auf zwei Stockwerken mit insgesamt fünf Wohnräumen ist alles wohnenswerte bestens untergebracht: Der Eingangsbereich mit Windfang, einem Technikraum, Gäste-WC und großzügigem, offenem Küchen-Wohn-Essbereich bieten ausreichend Raum zum Genießen und Wohnen im Erdgeschoss. Der Grundriss im Erdgeschoss kann auch geändert werden. Sprechen Sie uns an.
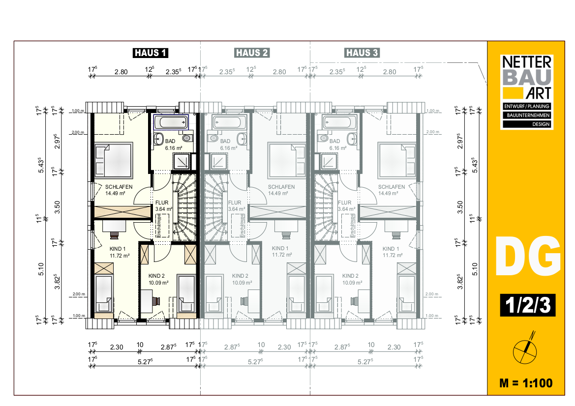
Im Dachgeschoss befinden sich drei große, geschlossene Räume und ein geräumiges Tageslichtbad mit Waschbecken, Dusche und Badewanne. Eine Einschubtreppe gewährt Zugang zum Spitzboden und bietet ausreichend Stauraum.
Auf Wunsch kann der Spitzboden auch zu einem Studio ausgebaut werden.
Die Wohnräume sind mit einer Fußbodenheizung ausgestattet. Die Häuser werden mit einer Abluft-Wärmepumpe versorgt.
Die zum Teil bodentiefen Fenster in allen Stockwerken öffnen Ihr Haus zum Garten und zur
Terrasse. Sie sorgen somit für eine optimale Nutzung des Sonnenlichts.
Bei den Reihenhäusern 1 + 4 finden Sie im Kellergeschoss weiteren Stauraum mit einem Heiz- und Waschraum, einem Flur und einem großen Kellerraum.
Gegen einen Mehrpreis können auch die anderen Häuser mit einem Keller versehen werden.
Kapitalanleger können von einer degressiven AfA von 5% profitieren, wir beraten Sie gerne.
Zur ausführlichen Beratung zur AfA befragen Ihren Steuerberater.
Wir greifen bei diesem Bauprojekt möglichst auf Produkte zurück, die durch das BayWa
BauGesund-Siegel als emissionsarm gekennzeichnet sind – und damit positiv zur
Wohngesundheit beitragen. Zusätzlich sind unsere Mitarbeiter durch
BauGesund-Experten in der wohngesunden Verarbeitung der Baustoffe geschult. Das
Qualitätskriterium „wohngesund“ werden wir durch eine unabhängige
Raumluftmessung gemäß Kriterien BayWa BauGesund-Siegel bestätigen.